Trifamiliare in vendita

Balangero, Corso borla
€ 329.000
Prezzo aggiornato
10 locali 10 locali
326 Mq 326 Mq
3 bagni 3 bagni

Trifamiliare in vendita

Balangero, Corso borla

Descrizione annuncio

BALANGERO - ZONA RESIDENZIALE

Nel comune di Balangero, Casa Indipendente libera sui 4 lati, costituita da tre unità abitative, ideale per famiglie numerose o per chi è alla ricerca di ampi spazi.

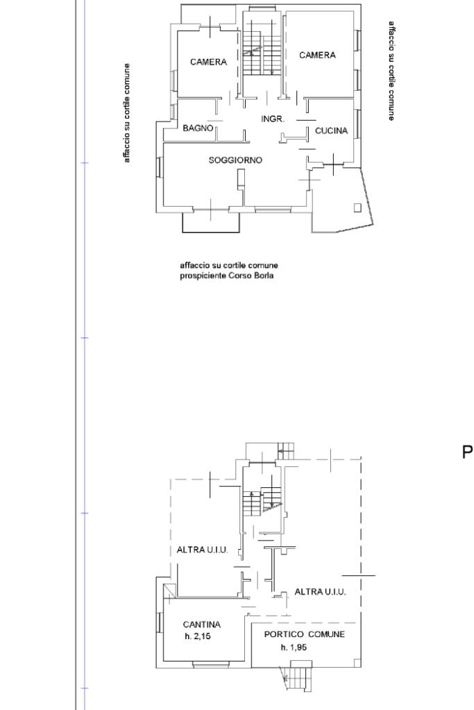
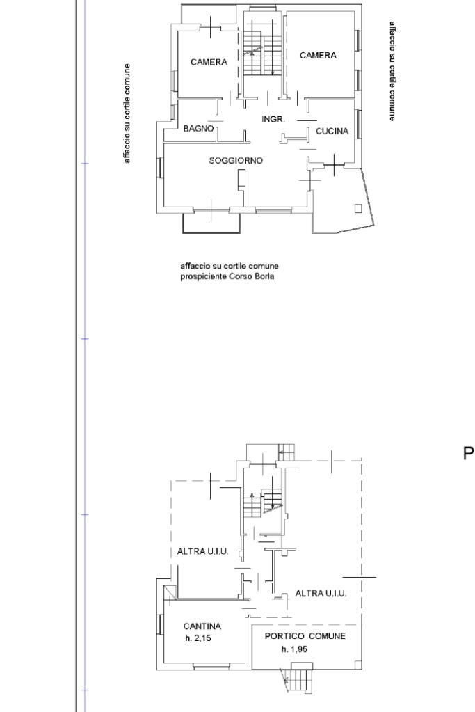
Al Piano Rialzato, la soluzione completamente ristrutturata si presenta con un ampio salone con uscita diretta sul porticato e sul giardino di pertinenza; completano il piano la cucina abitabile, le due camere il bagno e due balconi.

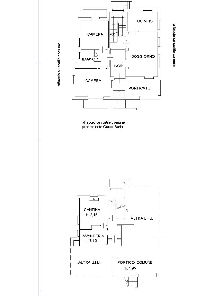
Il piano centrale è composto da un ampio ingresso, salone, cucina, due camere dalle generose dimensioni e dal bagno corredato di doccia; la soluzione è circondata da due balconi e da un terrazzino.

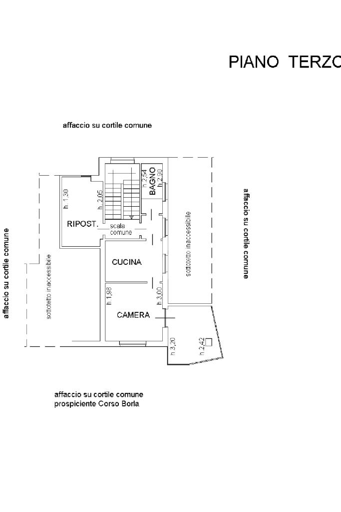
L'ultimo livello è costituito da un ingresso, cucina, camera da letto, bagno e terrazzino. Il piano è completato da un locale sottotetto e da una lavanderia.

La soluzione costruita nel 1970 e recentemente ristrutturata, vanta caldaie nuove a condensazione e infissi moderni, garantendo efficienza energetica e comfort abitativo. Il giardino e il cortile offrono spazi verdi privati, mentre i due box auto aggiungono praticità. Situata in una zona residenziale tranquilla, la proprietà è vicina ai principali servizi, rendendola una scelta ideale per famiglie. I locali accessori offrono ulteriori possibilità di utilizzo, rendendo questa villa una soluzione versatile e funzionale.

Mostra tutto

Nelle vicinanze

Trasporto pubblico Trasporto pubblico
Balangero
Balangero
810 m
Mathi
Mathi
2,5 Km
Balangero (semaforo Stazione)
Balangero (semaforo Stazione)
720 m
Mathi (v. Circonvallazione/v. Martiri Libertà)
Mathi (v. Circonvallazione/v. Martiri Libertà)
1,7 Km
Scuole Scuole
Scuole
270 m
Farmacia Farmacia
Farmacia Gabutti
290 m
Farmacia Bonardi Dott. Lorenzo
2,5 Km
Ospedali Ospedali
Ospedale ex Mauriziano di Lanzo
2,6 Km
Ospedali
2,6 Km
Supermercati Supermercati
CRAI La Canavesana S.n.c.
2,3 Km
Negozi Negozi
Al Mulin d'Barot
2,9 Km
Ristoranti Ristoranti
I faraglioni
2,1 Km
Luna Rossa
2,4 Km
Ristorante pizzeria Sangri-là
2,8 Km
Mostra tutto

Caratteristiche

Rif.:
61165313
Piano:
2 di 2 (Piano su più livelli)
Box:
2
Balconi:
4
Terrazzi:
3
Camere da letto:
5
Mostra tutto
Prezzo Prezzo
€ 329.000
Rata mutuo Rata mutuo
€ 1.536 / mese
Spese annue Spese annue
€ 0
Proponi il tuo prezzoProponi il tuo prezzo

Classe Energetica

D
D
D
D
D
D
D
D
D
EP globale non rinnovabile:
156.34 kW h/m² anno
EP globale rinnovabile:
1.19 kW h/m² anno
EP invernale del fabbricato:
EP estiva del fabbricato:
Anno di costruzione:
1971
Riscaldamento:
Autonomo
Tipo impianto:
A radiatori
Tipo alimentazione:
Metano

Prezzo ridotto di €1 (2%%)

Ti interessa visionare l'immobile?

Fissa un appuntamento  Fissa un appuntamento

Richiedi informazioni

Clicca su Leggi per aprire l'informativa
* Questi campi sono obbligatori

Calcola il tuo mutuo

Semplice e senza impegno
Anticipo

( % )
Mutuo

( % )

pochi semplici passi

inserisci i tuoi dati
Questionario completato
Grazie per aver richiesto un appuntamento senza impegno con un nostro Consulente del Credito e Assicurativo.

Hai inserito correttamente tutti i dati necessari e a breve riceverai una e-mail con un link da convalidare per inviare i tuoi dati.
Affiliato
Studio Cirie' Due Sas
Via Robassomero , 15 10073 Ciriè (TO)

Il nostro staff


  • Valter Savant Aleina
    Responsabile

  • Roberta Govoni
    Coordinatrice

  • Roberto Ronco
    Affiliato

  • Mario Malara
    Collaboratore

  • Alessandro Santarpia
    Collaboratore
Via Robassomero , 15 10073 Ciriè (TO)
Zona: Cirie'-Zona Stazione
Mostra su mappa
Orari: Dal Lunedì al Sabato dalle 08.30 alle 12.30 14.30 alle 20.00. Domenica su appuntamento
Affiliato
Studio Cirie' Due Sas
Via Robassomero , 15 10073 Ciriè (TO)

2026 Tecnocasa Franchising S.p.A. - P. IVA 08365160152 - Via Monte Bianco 60/A 20089 Rozzano (MI). Ogni agenzia ha un proprio titolare ed è autonoma. Privacy policy | Policy utilizzo | Cookie policy